715 m² vrhunskega poslovnega prostora za oddajo v NAMI
715 m² vrhunskega poslovnega prostora za oddajo v NAMI
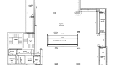
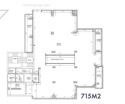
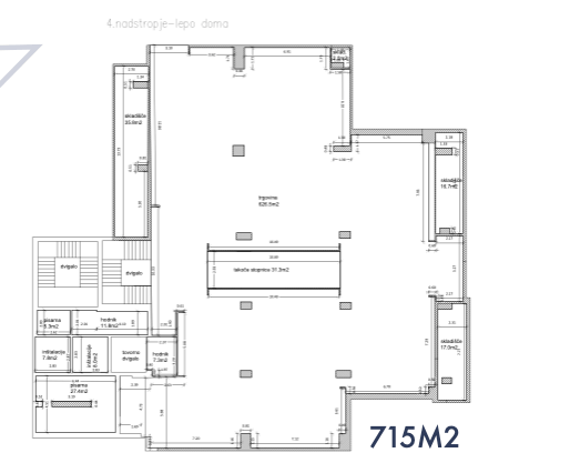
Za oddajo je na voljo vrhunski poslovni prostor v izmeri 715 m², v 4. nadstropju Name. Gre za še zadnji razpoložljivi prostor.
Prostor se nahaja nad trgovino Nike, ki se bo odprla spomladi 2026.
Primeren je kot prostor za zdravstvene dejavnosti, prodajalce športnih izdelkov ali opreme za dom.
Nama je prenovljena in ponuja privlačno novo ponudbo ter blagovne znamke.
Do 4. nadstropja vodijo stekleno dvigalo in tekoče stopnice iz pritličja. Za dostavo je na voljo tovorno dvigalo, dostopno v pritličju iz pasaže na zadnji strani stavbe.
Na voljo je tudi izložba neposredno na Slovenski cesti, ki si jo bodo delili trije najemniki
Najemnina znaša 10 €/m² + obratovalni stroški.
Za več informacij in dogovor o ogledu nas prosimo kontaktirajte.
Prosimo upoštevajte, da najemnikom ne zaračunavamo provizije!








