Metalka: prenovljeni pisarniški prostori za najem v centru Ljubljane
Metalka: prenovljeni pisarniški prostori za najem v centru Ljubljane
METALKA je moderna poslovna stavba mešane rabe, s kvalitetnimi, prenovljenimi pisarniškimi prostori in fitnes centrom v kletnih prostorih.
Pri prenovi je bila stavba dopolnjena z najsodobnejšo, energetsko varčno infrastrukturo in novimi dvigali.
Do pisarniških prostorov in parkirnih mest v dveh garažah vodijo 3 dvigala, V neposredni bližini se nahajajo storitve izposoje koles in avtomobilov.
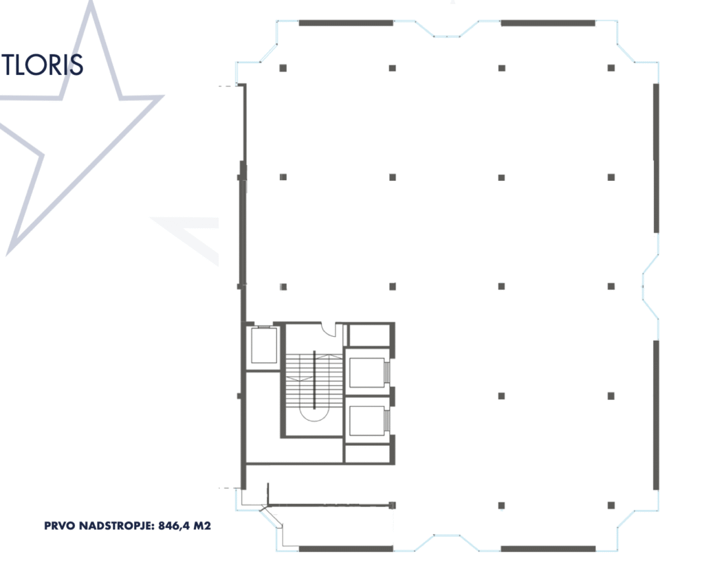
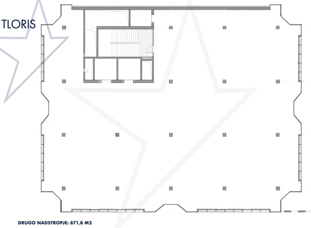
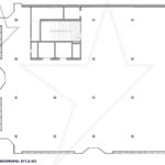
3. nadstropje meri 871 m2. Razdeljeno je na manjše enote v velikosti od cca. 90 m2 do 131 m2, na voljo pa so tudi različne kombinacije kvadratur. Najemniki si delijo kuhinjo in toaletne prostore.
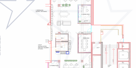
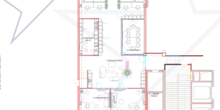
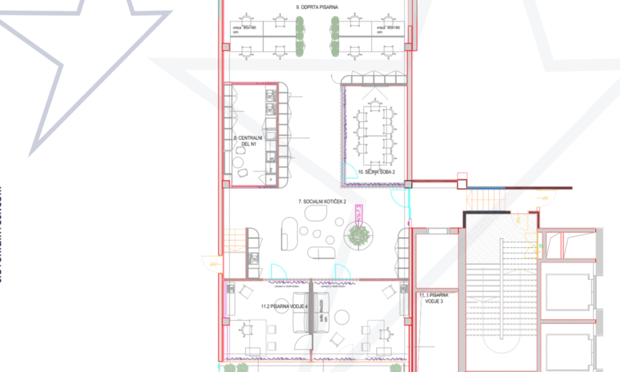
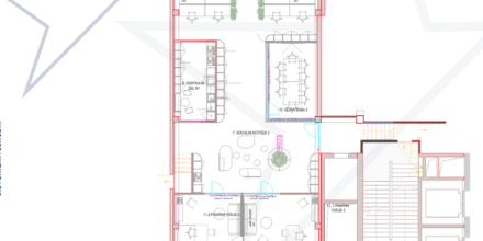
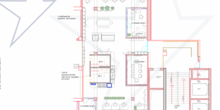
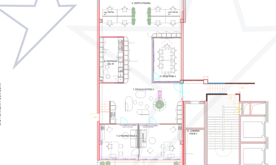
Na voljo sta tudi opremljeni enoti v medetaži 1. nadstropja in sicer:
- ENOTA 1 v velikosti 269 m2, vsebuje konferenčno sobo, ločene pisarne, kuhinjo in senitarije (M, Ž)
- ENOTA 2 v velikosti 277 m2, vsebuje konferenčno sobo, ločene pisarne in kuhinjo.
Najeti ju je mogoče le skupaj.
Površina vseh dokončanih pisarniških prostorov na voljo skupaj znaša cca. 1.064m2.
Stavba se nahaja na Dalmatinovi ulici in nudi pogled na Vrhovno sodišče RS, na drugi strani pa na ljubljanski grad. Do reke in središča starega mestnega jedra je le dve minuti hoje. Prav tako je zelo lahko dostopati do glavne avtobusne in železniške postaje, ki se nahajata le kratek sprehod stran. Po Slovenski in Gosposvetski vozijo številne avtobusne linije ljubljanskega potniškega prometa, z zelo dobro frekventnostjo. Čez cesto je Miklošičev park, peš pa je dostopen tudi park Tivoli z odprtimi površinami in številnimi rekreacijskimi objekti.
Stavba je bila zgrajena leta 1973. Prvotno je bila zasnovana kot veleblagovnica. Kasneje je bila spremenjena v poslovno, pretežno pisarniško stavbo. Nahaja se na odlični lokaciji, nudi kakovostne pisarniške prostore in veliko število parkirnih mest. Objekt je zaščiten kot kulturna dediščina, zato so ohranjene vse njegove prvotne značilnosti, vključno z marmornatimi in kamnitimi stebri in stenami ter marmornatimi tlemi.
Poslovni prostori v 3. nadstropju bodo dokončani in pripravljeni za vselitev. Enoti v medetaži sta opremljeni s pohištvom in že na voljo.
Na voljo je skupno 98 parkirnih mest v dveh podzemnih garažah, po ceni 190€/PM/mesec. Od beh je 22 dvojnih parkirnih mest (z omejenim dostopom za eno vozilo), ki so na voljo po ceni 240€/PM/mesec.
Najemnina znaša:
- 17 €/m2/mesec + DDV + stroški
Pričakovani skupni obratovalni stroški (upravljanje, zavarovanje stavbe in strojeloma) so med najemnike razdeljeni po delilnem ključu in so v letu 2025 zanašali 0,91 EUR/m2/mesec.
Strošek recepcijske službe bo predvidoma znašal 1 EUR/m2 do 1,5 EUR/m2
Individualni stroški (ogrevanja sanitarne tople vode in elektrika) so v letu 2025 znašali 3,49 EUR/m2/mesec.
Skupaj stroški (skupni + individualni) so v letu 2025 znašali 4,41 EUR/m2/mesec.
Najemnikom ne zaračunavamo provizije.
Za več informacij o najemu poslovnih prostorov nas prosimo kontaktirajte.














































